Projeto e construção de junções de túneis

Projeto e construção de junções de túneis

O planejamento e construção de junções de túneis é uma tarefa exigente para os planejadores e a equipe de construção. Vamos discutir isso em detalhes.

Um túnel é uma estrutura subterrânea ou espaço criado para transporte, abastecimento de água, serviços públicos, etc. Os túneis são frequentemente construídos em projetos hidrelétricos porque os cursos de água geralmente passam por rochas. Eles são construídos como túneis revestidos ou não, dependendo dos requisitos de projeto decorrentes de aspectos geotécnicos e outros aspectos de construção.

Tem outro Artigo na Internet sobre o desenho dos túneis e nos concentramos no planejamento e construção das junções dos túneis neste artigo. Os nós de um túnel são construídos para desviar o túnel principal para diferentes seções em diferentes estágios ou para dividi-lo em duas direções.

Existem diferentes tipos de juntas em túneis

  1. Túnel dividido em segmentos de igual tamanho: sem alterações no diâmetro
  2. Crie um desvio do túnel principal

O segundo método é uma construção comparativamente difícil com variação de diâmetro em comparação com o primeiro método. Devido à redução do diâmetro, deve ser construída uma transição para manter o fundo da água liso, pois a mudança brusca de diâmetro pode criar turbulência e danificar as estruturas, além de perdas de pressão.

Travessias de túnel

As travessias de túneis são construídas em locais onde a geometria do túnel muda. Existem várias ocasiões em que são construídas travessias.

  1. Alterar a forma do túnel circular ou semicircular para uma forma quadrada ou outra.
  2. Reduzindo o diâmetro de uma junta de túnel.

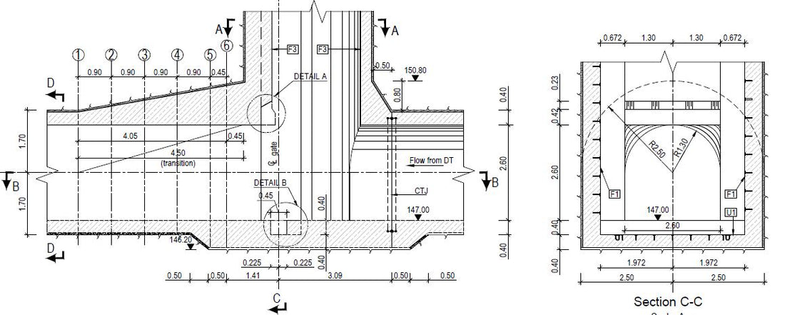
Especialmente em estruturas hidráulicas, a maioria das estruturas de portões tem formato quadrado ou retangular. Portanto, o túnel tem uma forma quadrada ou retangular no início e é convertido em uma forma de túnel normal após a estrutura do portão. O diagrama a seguir mostra uma conexão de túnel com um eixo vertical que atua como estrutura de portão. No portão o túnel torna-se quadrado e posteriormente retorna à sua forma original com a transição. A mudança de forma pode ser vista na seção CC.

Além disso, a figura a seguir mostra as variações de diâmetro com alterações de geometria. Pode-se observar a mudança gradual da forma quadrada para a circular.

Outro método para alterar a geometria do túnel é explicado detalhadamente neste artigo. O túnel necessita de ser fundido com outra geometria circular e a construção de tal ligação é muito difícil devido à complexidade da disposição das armaduras e cofragens. Além disso, uma mudança repentina na forma poderia resultar em perdas de pressão que poderiam afetar a geração de energia se o túnel fosse utilizado para este fim.

Geralmente, as transições são introduzidas em juntas deste tipo para garantir uma transição suave da geometria. O comprimento e o diâmetro da transição dependem dos diâmetros do túnel e dos requisitos de projeto. A figura a seguir mostra esse arranjo da transição do túnel.

Cargas de projeto e análise estrutural

As cargas do projeto do túnel devem corresponder às condições geotécnicas de um local específico. O peso da rocha e a pressão do grauteamento também podem ser considerados tensões. A pressão da água pode ser levada em consideração dependendo do estado da rocha e da disposição das tubulações destinadas ao escoamento da água. Para obter mais informações sobre modelagem, consulte o artigo “Projeto de túnel“.

A análise estrutural pode ser realizada utilizando software baseado em computador, pois os cálculos manuais podem ser muito difíceis para uma estrutura deste tipo. A figura a seguir mostra as imagens do modelo estrutural criado no software SAP 2000 para determinação de tensões, momentos fletores, forças axiais e forças cortantes.

Um modelo computacional tridimensional foi criado usando o software Sap2000, e as condições de contorno foram definidas de acordo com o arranjo real e os requisitos de análise estrutural. As combinações de carga foram criadas para os diferentes casos de carga considerados na análise e explicados acima. As figuras a seguir mostram os diagramas de momento fletor e força axial obtidos na análise.

O dimensionamento foi realizado com base nos momentos fletores, forças normais, forças cortantes e outras forças.

Projeto e detalhamento de reforços em travessias de túneis

O cálculo do projeto foi realizado de acordo com os padrões britânicos. Foi dada especial atenção às áreas onde ocorrem maiores concentrações de tensões. O modelo de análise computacional também é um layout idealizado da estrutura real. Portanto, os arranjos reais também foram levados em consideração durante o projeto. Por exemplo, desde a ligação entre dois túneis até ao ponto inicial da transição, o túnel tem uma forma quadrada (superfície de betão). No entanto, a superfície escavada é sempre circular no topo. Portanto, as diferenças de espessura devem ser levadas em conta no projeto e as seções críticas devem ser dimensionadas para as forças resultantes mais elevadas.

O detalhamento das armaduras foi realizado de forma que a sobrecarga da armadura fosse mantida o mais baixa possível, a fim de evitar problemas durante a fase de construção. Faveolamento, vazamento de lama, dificuldades de concretagem, etc. foram levados em consideração na elaboração dos desenhos de armadura.

Zurück zum Blog

Hinterlasse einen Kommentar

Bitte beachte, dass Kommentare vor der Veröffentlichung freigegeben werden müssen.